year: 2023
location: Řeporyje, Prague phase: in the process of realization
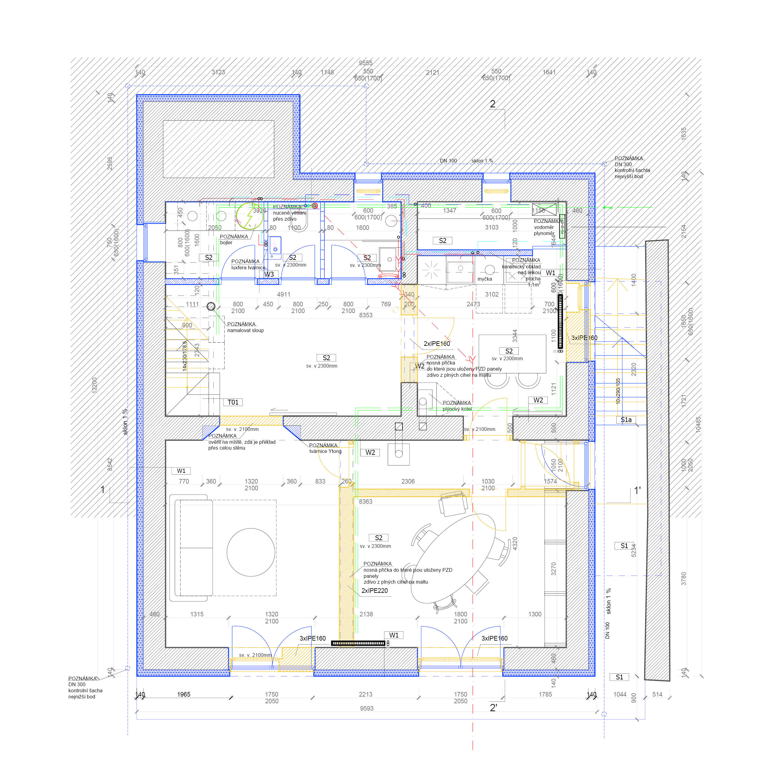
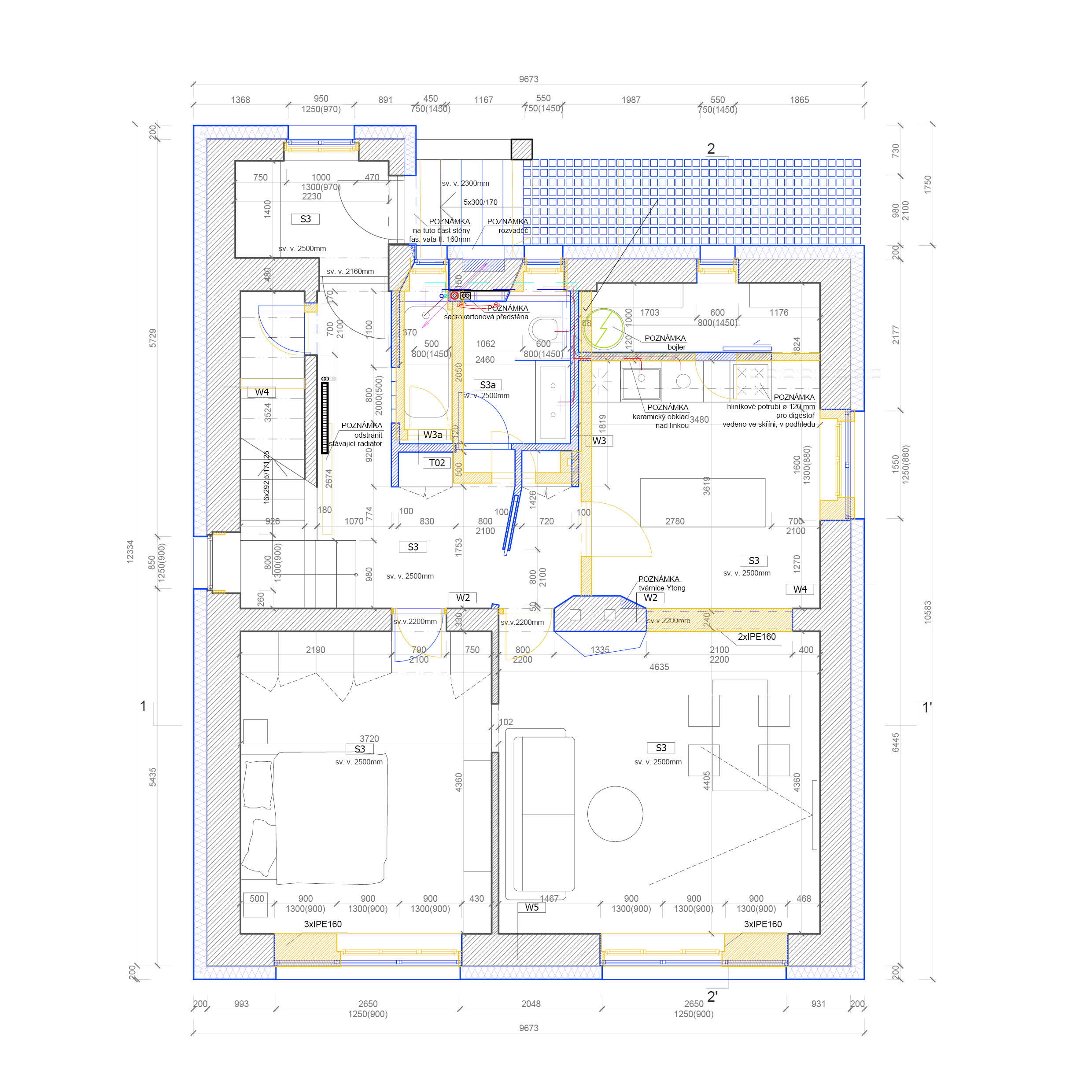
The assignment was to create an uncomplicated reconstruction of an old family home for a three-member family, with an emphasis on the conversion of the basement into a new living space. The space for the new program in the basement was created only by demolishing the non-load bearing walls and sills of the former windows. The former window openings will be replaced with larger windows to provide more light. The floor will be insulated with some minimal thermal insulation with a proposed concrete floor that will be visually polished. The proposal seeks to offer minimal alterations to the refurbishment of the first and second floors,proposing a better practical layout for the bathroom and kitchen.








